Selected Portfolio Projects

Religious Facilities

St. Ignatius Church Renovation Project

Project Details

Alterpex was responsible for scanning and collecting data of existing conditions, creating a virtual 360 walkthrough tour (digital twin), and creating a 3D Revit model with a complete as-built set of plans. Create a proposed model and plans with Architect's supervision.

  • Building Area 125,726 sf

  • Trim & Ornamentation Details

  • Complete As-Built Set of Plans

  • Full Interior & Exterior Point Cloud

  • 360 Virtual Tour

  • 3D Revit Model & CAD drawings

Projects

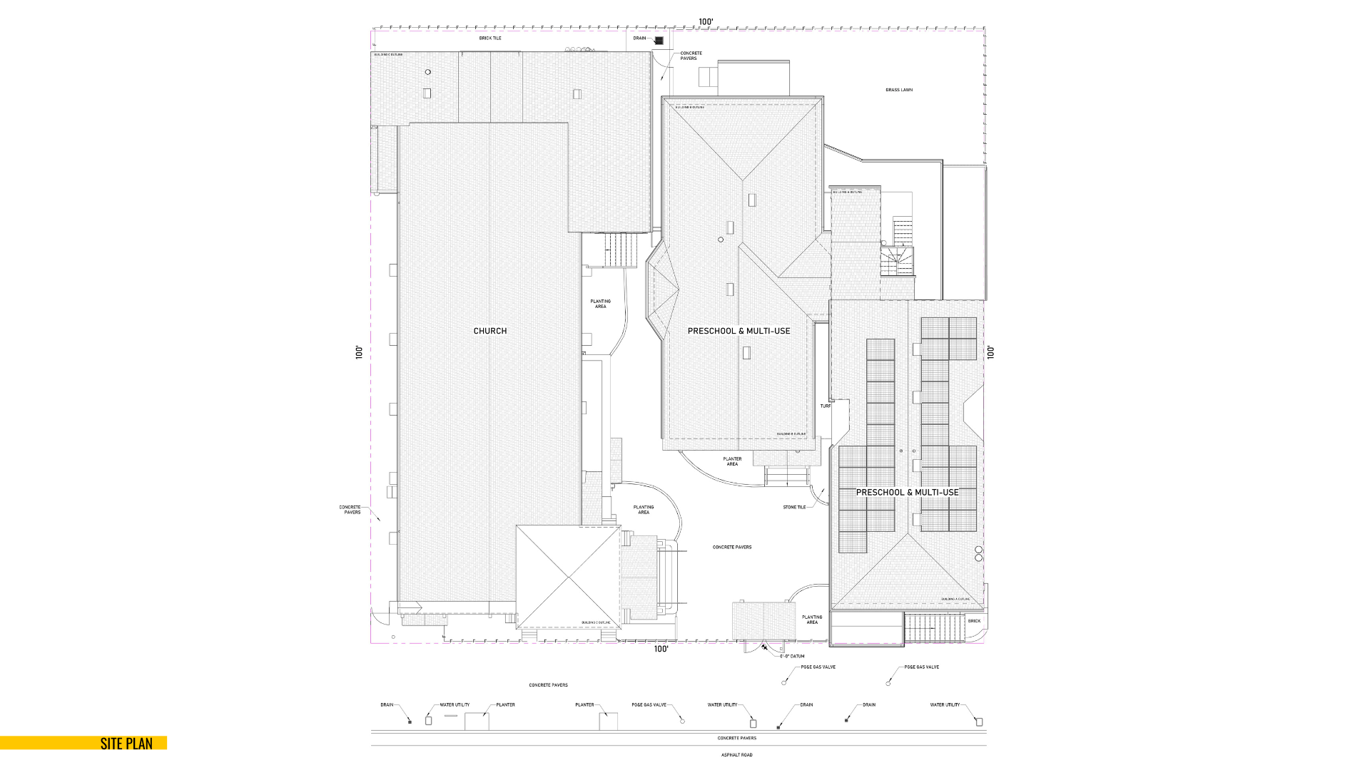
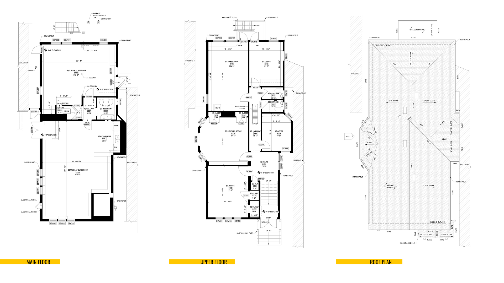
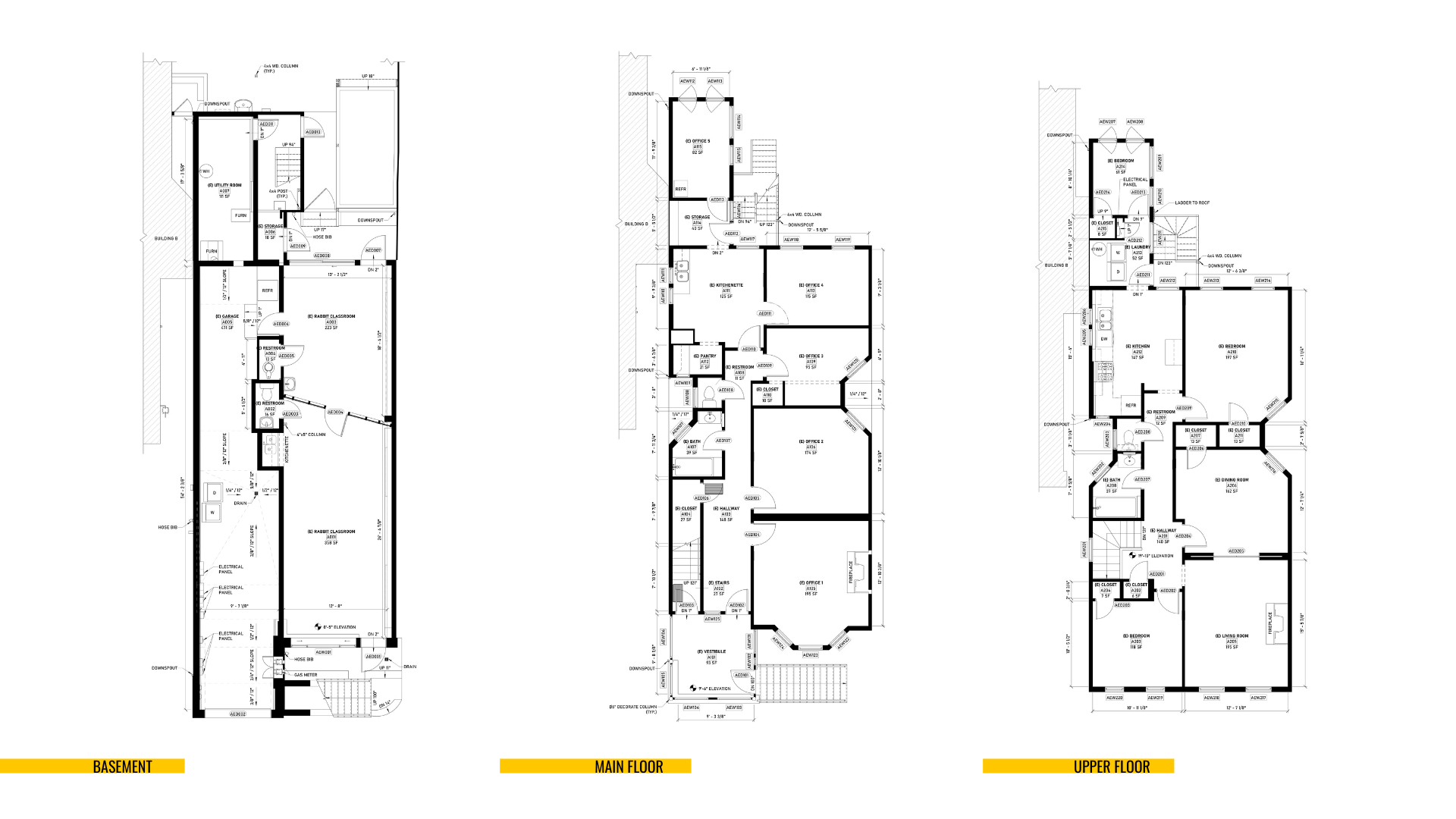
Multi-Structure Religious Complex Renovation Project

  • Multi-Structure Religious Complex Renovation 1
  • Multi-Structure Religious Complex Renovation 2
  • Multi-Structure Religious Complex Renovation 3
  • Multi-Structure Religious Complex Renovation 4
  • Multi-Structure Religious Complex Renovation 5
  • Multi-Structure Religious Complex Renovation 6
  • Multi-Structure Religious Complex Renovation 7
  • Multi-Structure Religious Complex Renovation 8
  • Multi-Structure Religious Complex Renovation 9
  • Multi-Structure Religious Complex Renovation 10
  • Multi-Structure Religious Complex Renovation 11
  • Multi-Structure Religious Complex Renovation 12
  • Multi-Structure Religious Complex Renovation 13
  • Multi-Structure Religious Complex Renovation 14

Project Details

Church, pre-school units, and multi-use facilities documented through a rapid, one-day site survey.Detailed individual and consolidated as-built drawings were delivered within 12 days.This was the third religious project completed with the same architect, focused on producing precise as-built documentation to support each renovation stage, and smooth coordination and confident design development.

Related Services

Previous
Previous

Dormitory

Next
Next

Winery