CAD to BIM Conversion Services
Turn your CAD drawings into accurate, ready-to-use BIM models.
We deliver accurate and clean models that save you time and keep your project moving.
Our team of skilled professionals specializes in Revit, the industry-leading software for building information modeling, and is ready to provide 2D to 3D conversion CAD services for your project.
Our CAD to BIM Conversion Services is built on the demand for complex, multi-cultural 3D models for coordination, collaboration, and design development.
We help you convert your CAD models with accuracy and precision to ensure the usability of the BIM models. At our team, we understand the need to convert accurate CAD drawings into more complex Revit models, preserving CAD standards.
The benefits of using BIM are countless, and besides blueprint sets, 2D CAD, and PDF files, we ensure the fulfillment of Building with Information through the use of Modeling skills. Learn more about BIM here.
Our CAD Conversion Services include
2D to 3D CAD Conversion
PDF to AutoCAD Conversion
Scanned Image to CAD
Paper-to-CAD conversion
Sketch to BIM
We provide CAD conversion services to help architects, engineers, GCs, and homeowners.
Whether you’re trying to modernize old CAD files or prep for new construction, we help you stay one step ahead.
Need fast turnarounds?
We always prioritize your project timeline without compromising accuracy, and following your CAD conversion requirements.
We review your drawings in CAD with attention to detail, and we follow our internal routine to transfer the 2D drawings into an efficient 3D model.
The PDF-to-CAD conversion is not an automated process and requires CAD experts to meticulously convert your files with accuracy.
Benefits of CAD Conversion Services
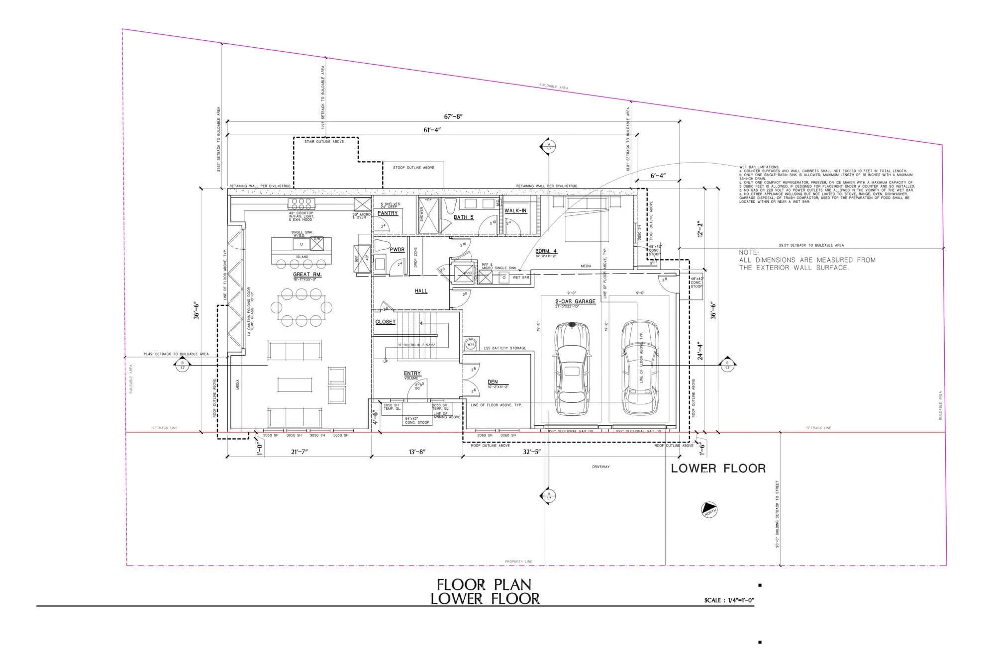
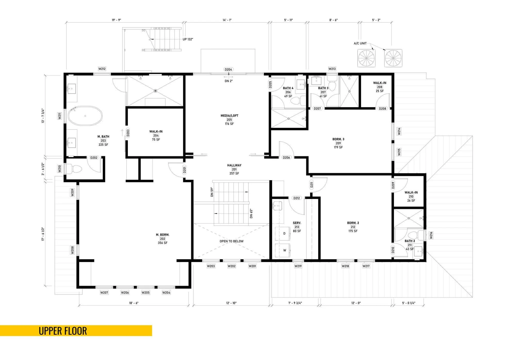
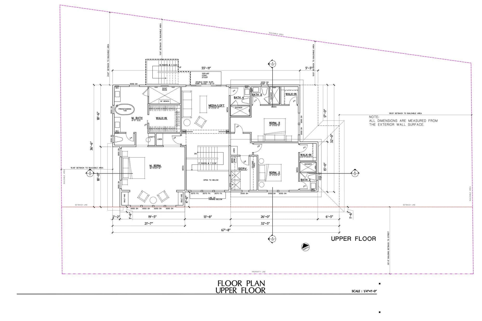
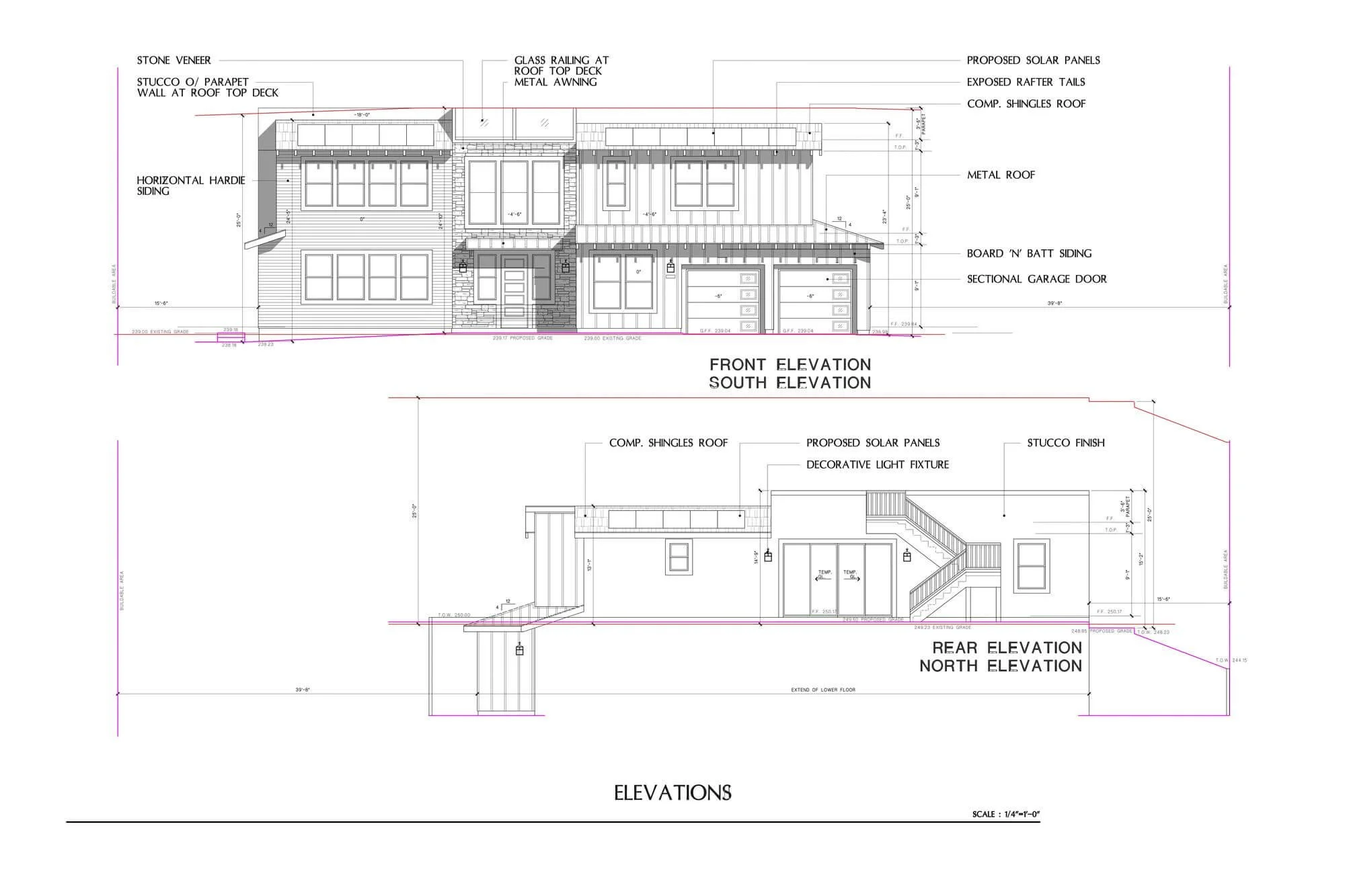
For many years, the CAD program was limited to 2D plans; now you can have 2D or 3D CAD files. While 3D CAD models are now accessible, Revit has been a preferred tool by many architects, engineers, and designers. And since our main goal is to streamline the design process, we prefer converting your drawings with Revit.
Just recently, we were contacted by the design studio that had taken over an ongoing architectural project. The original plans had been developed using CAD, and at first glance—viewed only as static PDFs—no major issues stood out.
We’ve collaborated closely with this studio on several past projects, so they entrusted us once again to provide drafting services. At the time, the existing building hadn’t been demolished yet. We offered both scan to CAD and scan to BIM services to improve accuracy, but the homeowners preferred not to disturb the current tenants.
As we began modeling the structure, several issues started to emerge. Balconies on the single-family residential buildings were misaligned, and other structural roof clashes became apparent. We’ve since been coordinating closely with the studio's architect to explore and resolve these problems.
This experience highlights one of the biggest advantages of moving beyond traditional CAD files—updating to BIM allows issues to be caught and addressed early, saving time, money, and headaches down the line.
We Provide our Services for
-

Single-Family Homes
-

Multifamily Residential
-

Commercial
-

Historical
-

Industrial
-

Healthcare
Our CAD to BIM Conversion Process
Send Us Your Files. We can work with most file types, including DWG, DXF, PDFs, and scanned plans. It is also possible to send markups or notes in addition to your AutoCAD files.
Review and Ask Questions. We comb through your files to identify any missing info. If any clarifications are requested, we will get in touch with you prior to commencing modeling work.
Revit Model Creation. Our expert builds the BIM model based on your CAD drawings. We follow the scope you need—whether it’s architectural, structural, or MEP. You get the right level of detail based on your project.
Quality Check. Our internal QC process is developed to catch misalignments and potential issues, we ensure our final models are ready to go and meet the client's expectations.
Delivery and Revisions. You get your Revit model back, ready for use. Need an adjustment or minor modification? Let us know, and we’ll do it for you.
What data should the client provide?
Any CAD format or a similar CAD format should do. Once we agree on a scope of work and are ready to review your kick-off info, we'll provide a link to upload your files.
Choose Alterpex for exceptional BIM, where accuracy, timelines, and communication are at the core of our commitment to your project’s success.
Our Clients
What our customers say
“Alex and his team were great to work with. Prompt, well priced, quick scheduling and turn around of the digital files. The most incredible part though was the quality and depth of work for my As-Built needs (medium home remodel). I have had several architects, designers and engineers ask me who did this great work. They were all impressed. Nice job Alterpex, well done. Will be recommending and using you in the future. Thanks!”
“After experiencing time and communication challenges with a previous vendor, we decided to bring Alterpex on board. Their performance has been exceptional: they provided us with excellent As-Builds, maintained swift and effective communication, and delivered drawings of impressive quality. We've successfully completed two projects with them and have every intention of continuing to engage their services for our upcoming endeavors.”
FAQs
-
We work with .dwg, .dxf, .pdf, and even hand-drawn sketches. If you’re not sure if your file works, just ask—we’ll take a look. We provide editable files and ensure our services can help you work with this model in design and drafting, and for other future purposes.
-
Yes. We can develop accurate BIM models from scanned plans or PDFs, even when these plans are old and marked.
-
It depends on the size and scope of your project; it could be up to a week for smaller models, or it could be a couple of weeks if you have more extensive or complex files. Either way, we will agree up front on a timeframe.
-
Yes. Our BIM experts build models based on the Level of Development you need—LOD 100 to LOD 400. Just tell us what you’re aiming for.
-
Absolutely. We can model one, two, or all three disciplines. Let us know what you need, and we’ll build it out. We can work with various CAD plans, architectural designs, framing plans, construction drawings, etc.
-
Yes, it is. We provide Revit models, CAD files of the more developed model, and SketchUp. We can also help you order paper drawings upon request.
-
Yes. We are happy to sign a non-disclosure agreement if you require. Your files and details of the project remain private.
Make your construction or renovation project easier with reliable CAD to BIM Conversion Services from Alterpex.
Based in California and serving clients across the U.S., we’re ready to help you move forward with confidence. Contact us today and see how our team can support your project.
Related Services
Contact us
info@alterpex.com
(415) 696-4180
MAIN OFFICE
27200 Tourney Rd, Suite 410
Santa Clarita, CA 91355
LOS ANGELES METROPOLITAN
1180 South Beverly Drive
Los Angeles, CA 90035
SAN FRANCISCO BAY AREA
50 California St, Suite 1500
San Francisco, CA 94111
Contact us to streamline your construction process
We Provide Professional Services Nationwide
Home > BIM Services > CAD Conversion Services