Structural BIM Services
Take your construction projects to new heights with our comprehensive structural BIM modeling services.
Our team of experts specializes in creating intelligent, data-rich 3D models that accurately represent your structural designs.
Our optimized BIM modeling process saves you time and money by detecting clashes and coordination issues early, minimizing costly rework and delays on site.
We meticulously model every structural element, from foundations to framing systems, adhering to industry standards and best practices for unparalleled accuracy.
At our company, we carry the benefit of a 15-year experience in BIM in different industries and project types.
The best quality for competitive pricing is our team’s mission.
Our BIM Structural Services
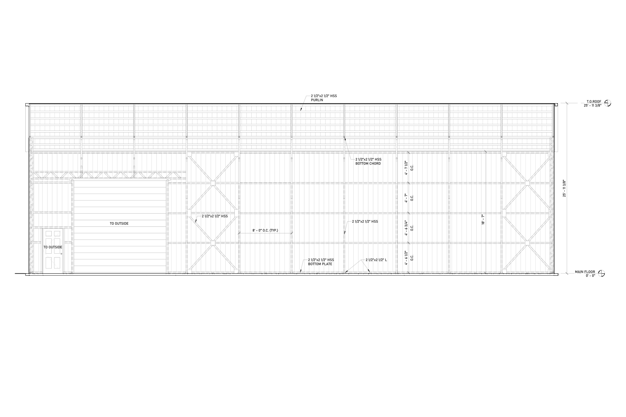
Structural Steel Detailing. This is a specialized service that focuses on creating comprehensive 3D models and detailed documentation for fabricating and installation of structural steel elements, including beams, bolts, plates, and steel connections. These models include precise dimensions, profiles, and material specifications.
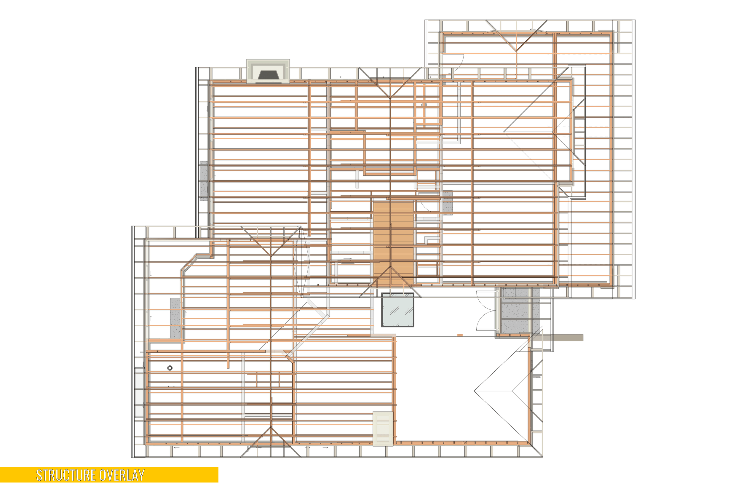
Structural 3D Modeling. It involves creating intelligent, data-rich 3D models of all structural elements and systems using specialized Building Information Modeling software and technologies. These models accurately depict the geometry, components, and relationships of elements within a building, such as beams, columns, slabs, walls, and foundations.
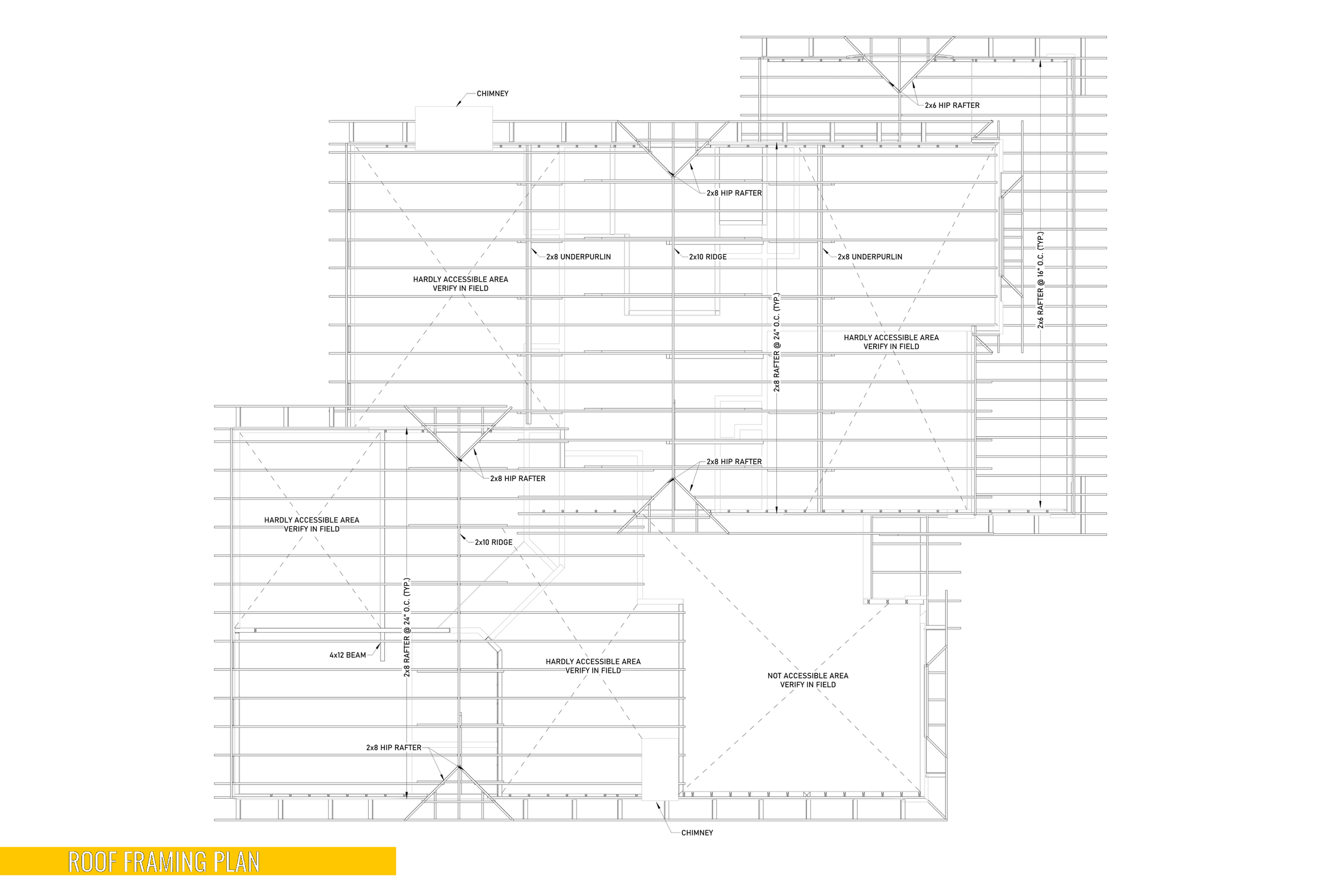
Structural Wood Framing. These models provide accurate information on wooden structural elements, including studs, joists, rafters, beams, and headers, as well as their spatial relationships and connections within a building. The models represent the precise geometry and specifications of each component, enabling efficient planning, material estimation, clash detection, and construction coordination.
Precast Detailing/Modeling. Focusing on creating detailed 3D models and documentation for precast concrete structural elements, precise detailing ensures that each precast component meets quality standards, leading to enhanced integrity and durability.
Rebar Detailing. Comprehensive 3D modeling and documentation of reinforcing steel bars (rebars) within concrete structural elements using BIM technology. The use of specialized software allows the automatic generation of precise bar bending details, shapes (hooks, overlaps, etc.), and bending schedules directly from the 3D model of the rebar.
Shop/Fabrication Drawings. These drawings contain detailed information required for the accurate fabrication and manufacturing of structural components off-site, before being transported and assembled on the construction site. They are derived from the 3D Building Information Models and help minimize errors, improve efficiency, and enhance the overall quality of construction projects.
Construction Documentation. These documents include all necessary information required for the construction of a building's structural elements, ensuring that the project adheres to design specifications, codes, and standards. Accurate documentation helps in avoiding rework or modifications later in the project, saving time and resources.
Project Examples
Metal Barn
Single Family House
How the price is formed?
Each project is unique, and our cost estimates are tailored individually. However, three key factors influence pricing:
SCOPE OF WORK
Before starting a new project, we define the scope of work to ensure time is used efficiently and all project needs are met.
LEVEL OF DETAILING
The amount and level of detail will also impact the cost. A preliminary design may be sufficient during the development stage, but more detailed documentation is required once the design is approved.
TIMELINE
Shortening deadlines that necessitate extra working hours or rapid resource deployment could incur supplementary expenses.
Our services process
Project Scoping and Planning
Data Collection and Input
3D Modeling of Structural Components
Parametric Design
Spatial Coordination and Clash Detection
Visualization and Rendering
Quantity Takeoffs and Estimation
Structural Analysis
Documentation Generation
Review and Validation
As-Built Model and Documentation
We Provide Structural BIM Services for
-

Commercial
-

Industrial
-

Single-Family Homes
-

Multifamily Residential
-

Historical
-

Healthcare
Our Clients
Benefits of Working with Us
Quality
Our Structural BIM Services ensures precise and reliable documentation, reducing errors and facilitating smooth construction workflows.
Speed
We deliver projects promptly, setting realistic timelines based on scope and adhering to deadlines.
Flexibility
Our services offer exceptional flexibility, allowing for easy modifications and adjustments throughout the project lifecycle.
Value
Share your requirements, and we'll optimize our approach to deliver maximum value.
With our Structural BIM Services, you can outsource your modeling requirements to a reliable partner, freeing up your internal resources to focus on core competencies. Our unique selling proposition lies in our ability to deliver high-quality, fully coordinated BIM models within shorter turnaround times, ensuring your projects stay on track and within budget.
Our BIM specialists bring years of experience collaborating with clients, enabling them to seamlessly adapt to various standards and building codes.
Local Electrical BIM Services
FAQs
-
It is an intelligent 3D model-based process that provides architecture, engineering, and construction (AEC) professionals with insight and tools to efficiently plan, design, construct, and manage buildings and infrastructure.
-
We use Autodesk Revit BIM software for its compatibility and usability.
-
Уes, we can do that.
Take the stress out of your construction or renovation project with our exceptional Structural Bim Services.
Whether you are in California or anywhere else in the US, Alterpex is here to support you.
Contact us today to discover how our team can help you achieve success.
Related Services
Contact us
info@alterpex.com
(415) 696-4180
MAIN OFFICE
27200 Tourney Rd, Suite 410
Santa Clarita, CA 91355
LOS ANGELES METROPOLITAN
1180 South Beverly Drive
Los Angeles, CA 90035
SAN FRANCISCO BAY AREA
50 California St, Suite 1500
San Francisco, CA 94111
Contact us to streamline your construction process with our Structural BIM Services
We Provide Professional Services Nationwide
Home > BIM Services > Structural BIM Services