Selected Portfolio Projects

Single-Family As-Builts

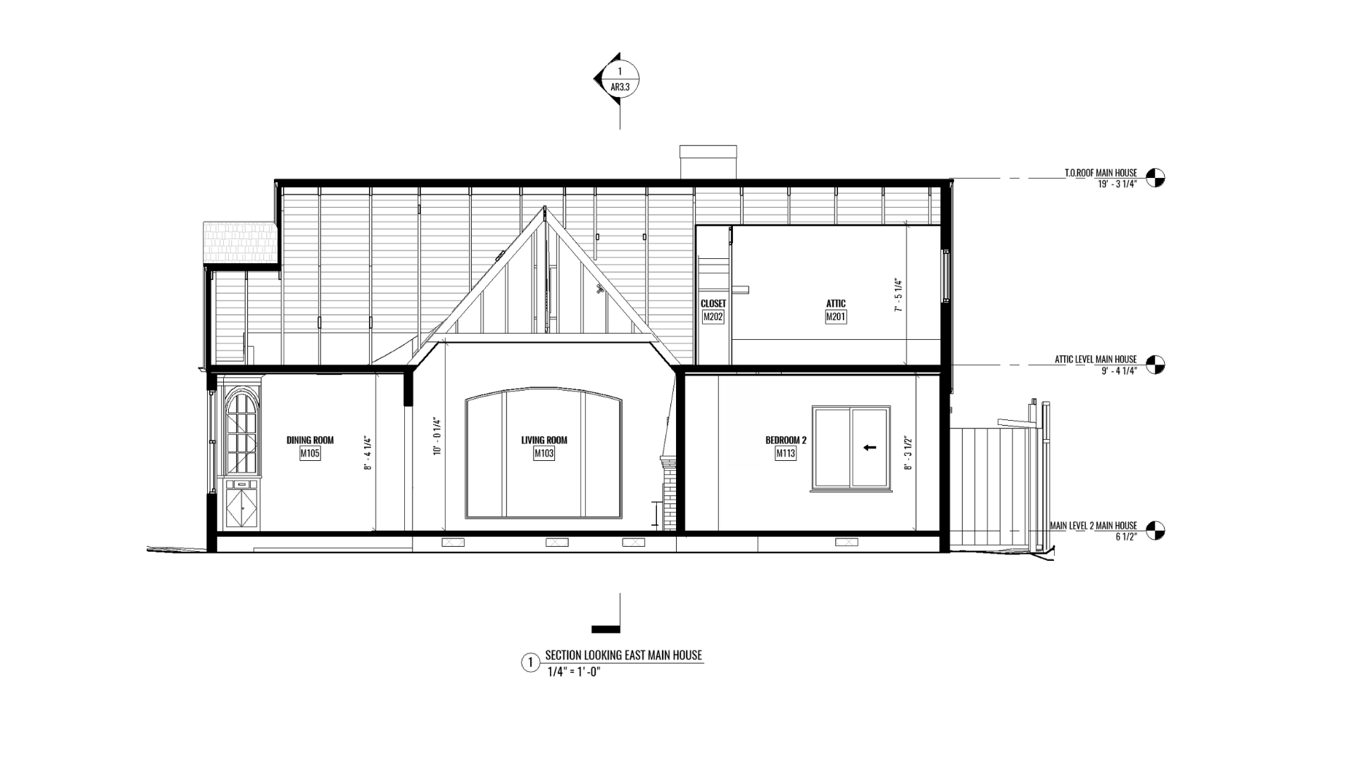
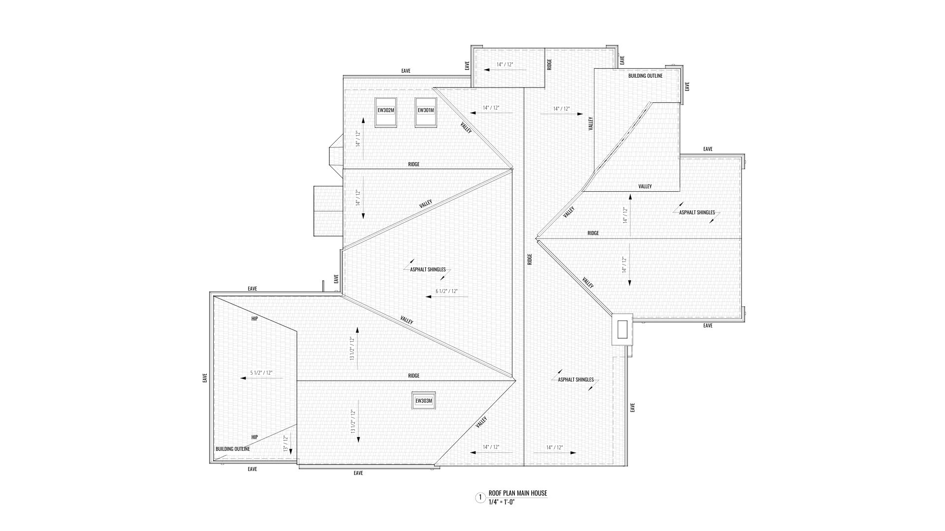
Single-Family As-Built, Menlo Park

Project Details

Alterpex was responsible for scanning and collecting data of existing conditions for a single-family house, creating a virtual 360 walkthrough tour (digital twin), and creating a 3D Revit model with a complete as-built set of plans for future renovation.

  • Building Area 2,088 sf

  • 3 Beds, 3 Baths

  • Complete As-Built Set of Plans

  • Full Interior & Exterior Point Cloud

  • 360 Virtual Tour

  • 3D Revit Model & CAD drawings

Single-Family As-Built, Palo Alto

Project Details

Alterpex was responsible for scanning and collecting data of existing conditions for a single-family house, creating a virtual 360 walkthrough tour (digital twin), and creating a 3D Revit model with a complete as-built set of plans for future renovation.

  • Building Area 3,892 sf

  • 4 Beds, 4.5 Baths

  • Complete As-Built Set of Plans

  • Full Interior & Exterior Point Cloud

  • 360 Virtual Tour

  • 3D Revit Model & CAD drawings

Single-Family As-Built, Orinda

Project Details

Alterpex was responsible for scanning and collecting data of existing conditions for a single-family house, creating a virtual 360 walkthrough tour (digital twin), and creating a 3D Revit model with a complete as-built set of plans for future renovation.

  • Building Area 1,780 sf

  • 2 Beds, 2 Baths

  • Complete As-Built Set of Plans

  • Full Interior & Exterior Point Cloud

  • 360 Virtual Tour

  • 3D Revit Model & CAD drawings

Single-Family As-Built, Berkeley

Project Details

Alterpex was responsible for scanning and collecting data of existing conditions for a single-family house, creating a virtual 360 walkthrough tour (digital twin), and creating a 3D Revit model with a complete as-built set of plans for future renovation.

  • Building Area 2,996 sf

  • 3 Beds, 2 Baths

  • Complete As-Built Set of Plans

  • Full Interior & Exterior Point Cloud

  • 360 Virtual Tour

  • 3D Revit Model & CAD drawings

Single-Family As-Built, Santa Cruz

Project Details

Alterpex was responsible for scanning and collecting data of existing conditions for a single-family house, creating a virtual 360 walkthrough tour (digital twin), and creating a 3D Revit model with a complete as-built set of plans for future renovation.

  • Two Buildings Area 3,124 sf

  • 3 Beds, 3 Baths

  • Complete As-Built Set of Plans

  • Full Interior & Exterior Point Cloud

  • 360 Virtual Tour

  • 3D Revit Model & CAD drawings

Single-Family As-Built, Atherton

Project Details

Alterpex was responsible for scanning and collecting data of existing conditions for a single-family house, creating a virtual 360 walkthrough tour (digital twin), and creating a 3D Revit model with a complete as-built set of plans for future renovation.

  • Building Area 1,789 sf

  • 3 Beds, 2 Baths

  • Complete As-Built Set of Plans

  • Full Interior & Exterior Point Cloud

  • 360 Virtual Tour

  • 3D Revit Model & CAD drawings

Single-Family As-Built, Petaluma

Project Details

Alterpex was responsible for scanning and collecting data of existing conditions for a single-family house, creating a virtual 360 walkthrough tour (digital twin), and creating a 3D Revit model with a complete as-built set of plans for future renovation.

  • Building Area 1,095 sf

  • 2 Beds, 1 Bath

  • Complete As-Built Set of Plans

  • Full Interior & Exterior Point Cloud

  • 360 Virtual Tour

  • 3D Revit Model & CAD drawings

Related Services

Next
Next

Single-Family Remodeling